Olha Tytova
As a graduated architect I always have wide range of professional interests from architecture to interior and landscape design. Last 10 years I am working in landscape industry, but non only in office, using computer, but also planting trees, shrubs, flowers, lawns for clients. During this period I have recieved experience in developing conceptual, landscape and planting designs for private and commercial residences, roof gardens, sport facilities, parks. I can make landscape project in different historic styles (Italian or French regular, English, Dutch), romantic, natural or modern minimalistic style garden. My work consists of preparation of illustrative concept images, schematic design plans, including grading plan, layout plan, paving plan, planting plan, lighting plan, drainage plan, projects for gazebo, fences, benches, outdoor kitchens. Also I am using locally available and sourced materials for landscape projects, including native plant species. I am interested in design of green roofs and green living walls. I am highly organized, always pay strong attention to details and communication with clients, because their opinion and demands are very important for me.
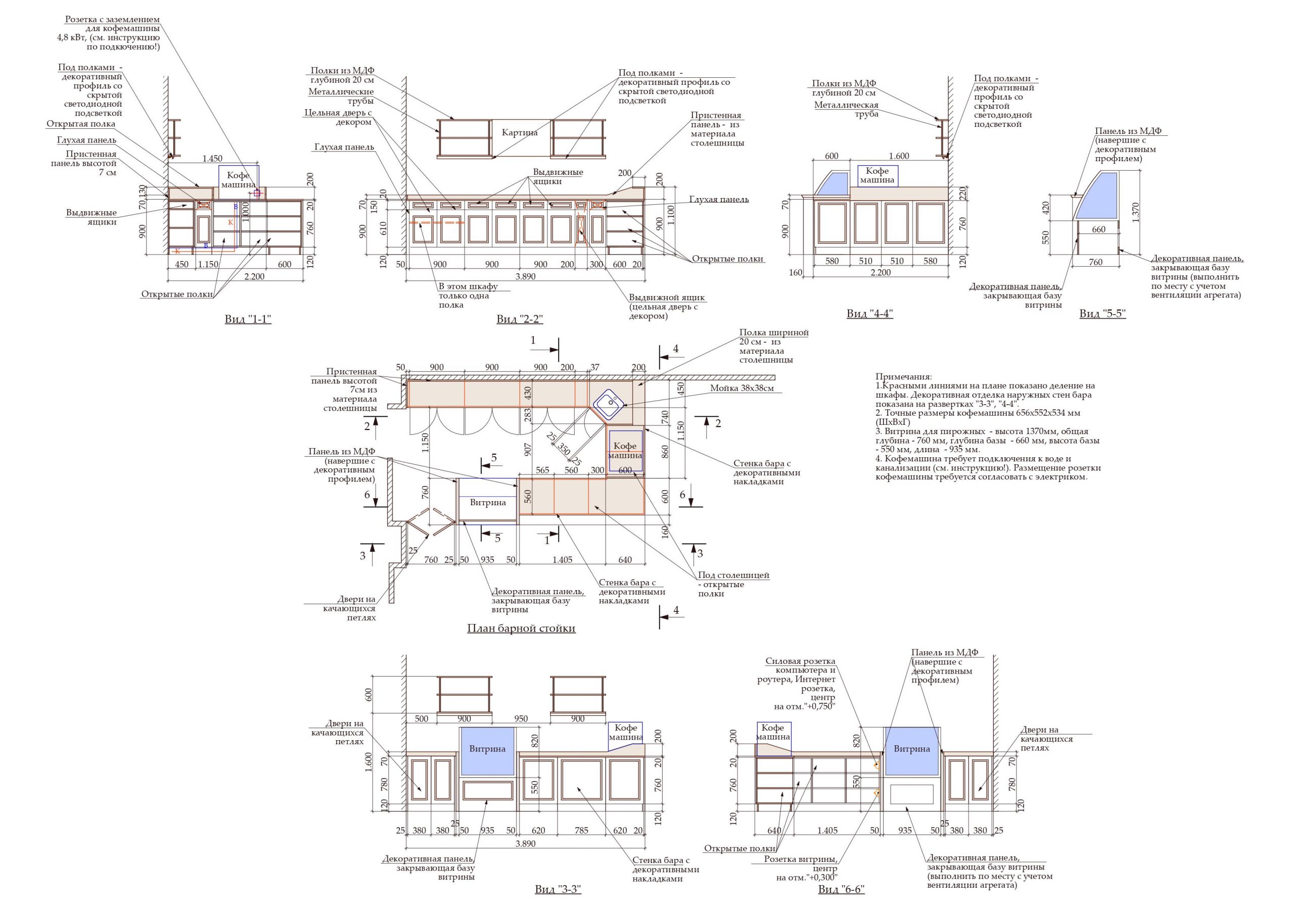
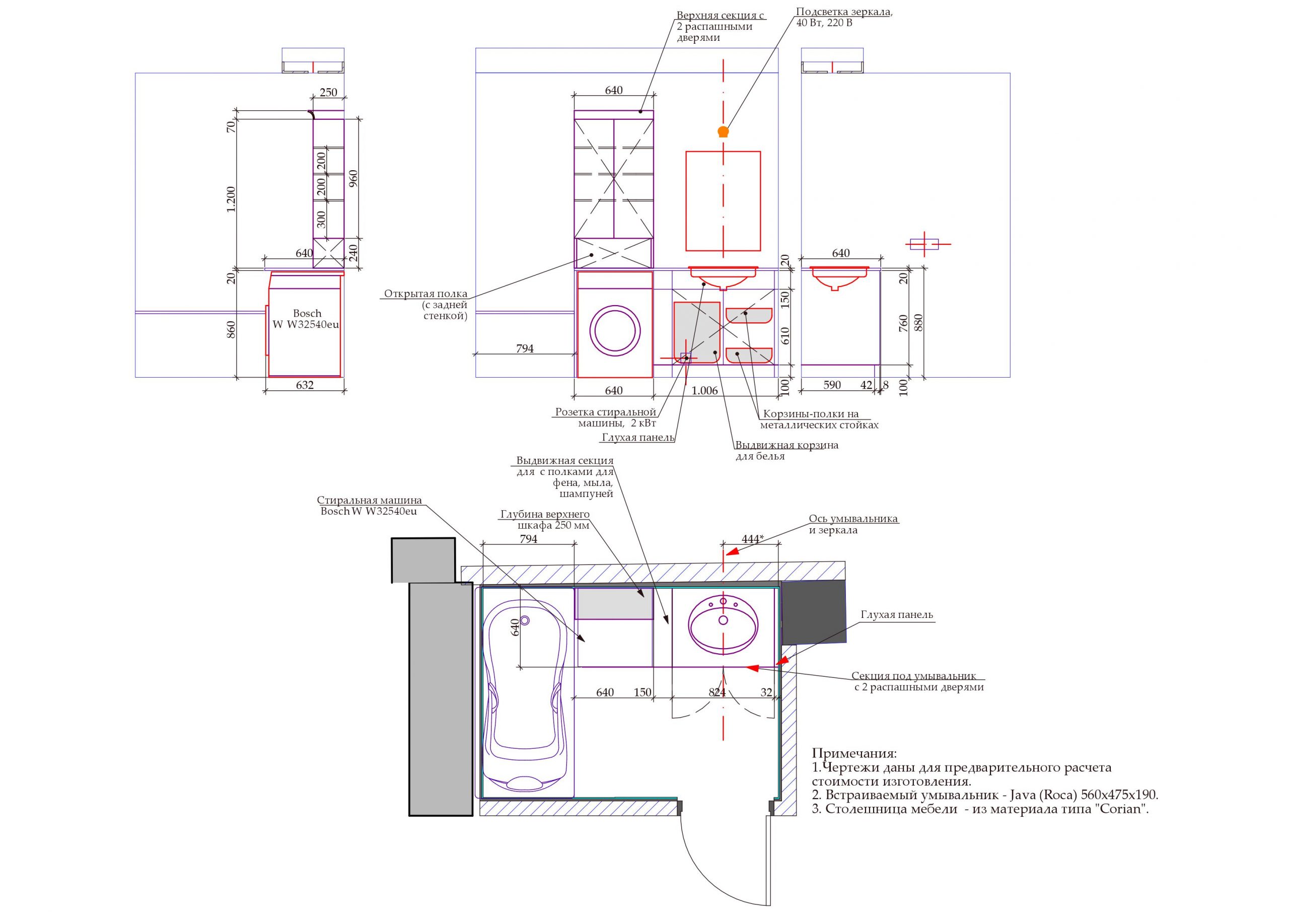
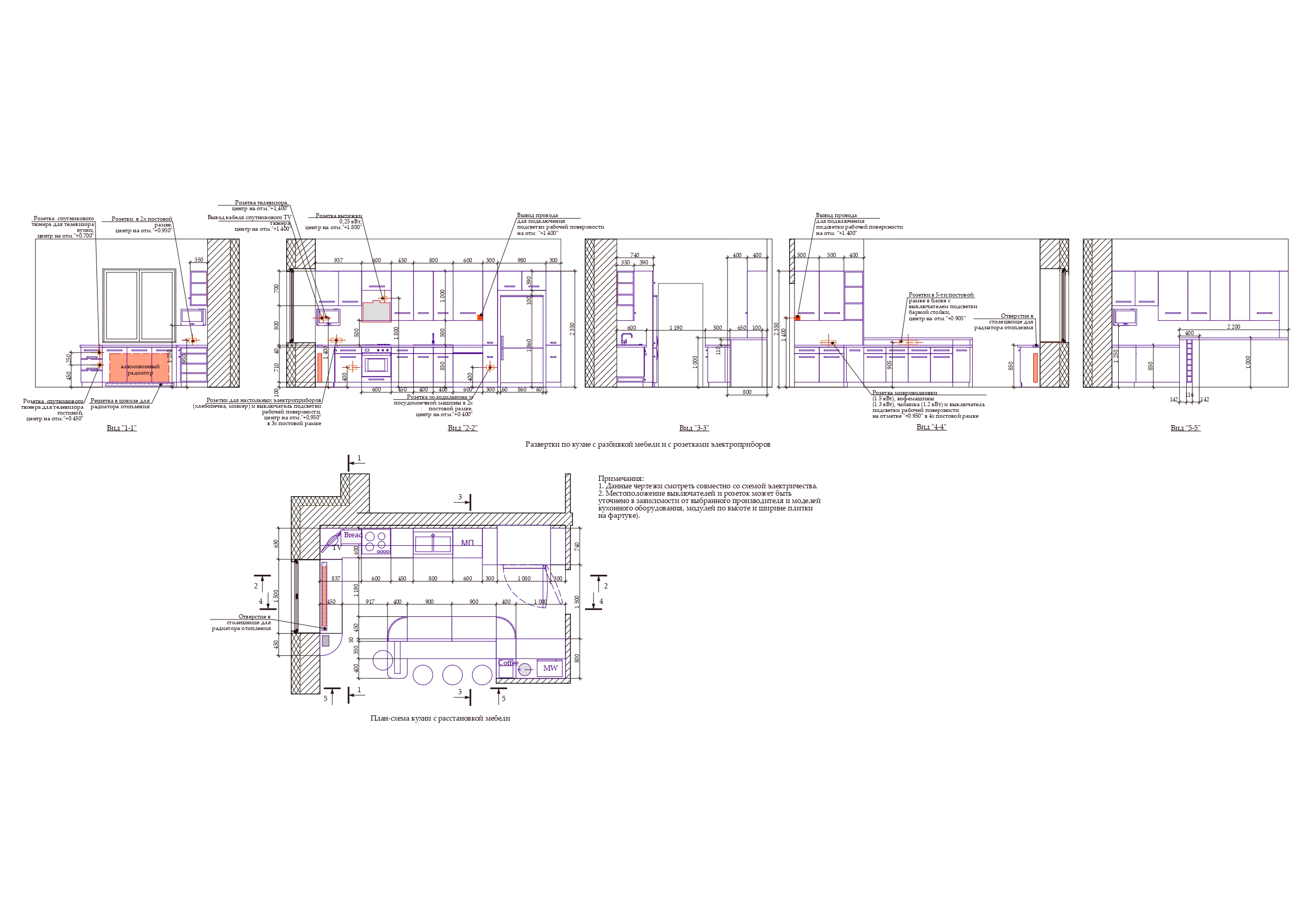
Also I have the experience in interior design for more than 15 years, and I should be happy to help the clients. especially I like kitchen design.
Designers Gallery
Business Hours
- Monday:08:00 am to 06:00 pm
- Tuesday:08:00 am to 06:00 pm
- Wednesday:08:00 am to 06:00 pm
- Thursday:08:00 am to 06:00 pm
- Friday:08:00 am to 06:00 pm
- Saturday:Closed
- Sunday:Closed
English
